京广线临城牵引变电所直流屏更换体会
2018-03-07
中国电源产业网
导语:本文以临城牵引变电所的直流屏更换为例,介绍了牵引变电所在确保不失去直流电源的情况下直流屏的更换方法,对更换程序和注意事项进行详细论述,为其他牵引变电所直流系统改造提供了经验。
林汪洋1 李彦吉2
(北京铁路局石家庄供电段 石家庄050000)
摘 要:本文以临城牵引变电所的直流屏更换为例,介绍了牵引变电所在确保不失去直流电源的情况下直流屏的更换方法,对更换程序和注意事项进行详细论述,为其他牵引变电所直流系统改造提供了经验。
关键词:牵引 变电所,直流屏,不停电 更换
Abstract:Taking the dc screen replacement of Lin Cheng traction substation as an example,the paper introduces the replacing scheme of the dc screen in the case of the traction substation to ensure that the dc power supply is not lost,and discusses the replacement procedure and the precautions,in order to provide experience for the transformation of dc system of other traction substations.
Key words:traction substation, DC screen,nonpowercut replacement
牵引变电所直流系统是保证设备安全运行的一个重要组成部分,主要作为继电保护、控制、信号、仪器仪表以及事故照明等的重要电源,其可靠与否,直接关系到电力系统的稳定运行和设备安全。
1既有直流系统概况及供电方式
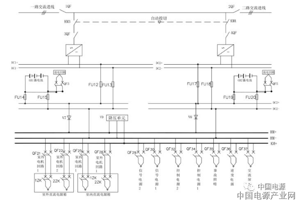
临城牵引变电所自2006年综自改造以来直流系统服役已10年之久,随着时间的推移,不可避免地出现了各种各样的问题,如充电模块故障、监控器电源模块损坏、绝缘监测模块失效、直流接地无告警等问题时有发生,对牵引变电所的安全供电构成威胁,亟待进行更换。牵引变电所的直流系统改造的特殊性在于必须确保全所不失去直流电源的情况下进行直流负荷的移出或接入。如图1所示,临城牵引变电所直流系统由高频开关电源和蓄电池组两部分组成,系统引入两路交流电源,采用单母线分段接线形式,正常情况下高频开关电源给负载供电、并为蓄电池浮充电。

图1 既有直流系统原理图
2直流屏更换关键点
2.1此次直流屏更换是在既有屏位上进行全部直流系统设备更换,作业空间狭小,容易误碰运行设备或造成人员受伤。
2.2直接进行直流屏更换施工工作的有关人员,对新直流屏的原理不够了解。
2.3直流屏与运行设备间有电的联系,需带电作业。
2.4直流屏更换过程中,要求旧直流屏不能带电移出,新直流屏不能带电就位,以确保设备及人身安全。
新 、旧直流屏电路割接的难度大,在旧屏转换为新屏的过程中,一旦发生直流电源断线、短路或者接地,都将有可能导致保护装置误动或者拒动,造成停电事故,如何确保继电保护及开关操作所需的直流电源安全可靠 , 成为本工程需解决的关键问题。
3直流屏更换方案的选择
方案一,直流系统通过两次并接切换实现更换。即使用一套新直流屏做为临时过渡,将过渡直流电源并入旧直流系统,然后拆去旧直流系统,在新的直流系统安装调试完毕后,将第二套新的直流系统并入临时直流电源,再拆除临时直流电源即可。
此方案实施过程比较简单,但是危险因素较多,两组不同的直流系统并接时容易产生压差,且因蓄电池的内阻较小,容易产生较大的环流,并列运行时对蓄电池冲击较大,影响蓄电池寿命。
方案二,直流系统不直接并接,两套直流系统充电机不并联运行。由既有直流装置的蓄电池组加一套过渡直流系统将所内既有直流装置替换,在既有直流装置的交流、直流完全断电的情况下撤旧;再由过渡屏直流装置的蓄电池组加一套新直流系统将所内过渡直流装置替换,最后将过渡屏及过渡电缆拆除。
此方案实施过程相对复杂,但是由于两套充电机不并联运行,从而有效避免了环流的存在,安全系数高。
经过现场调研和分析比较,方案二的安全系数高、作业时间及现场空间也都能满足要求,所以选择方案二组织施工。
4直流屏更换程序
结合新旧直流系统原理图进行说明。(过渡屏同新直流屏原理、型号完全一样,不再另附图)新直流屏原理见图2,倒接前将过渡直流屏交流进线电源接好并试验正常,对蓄电池组进行充分充电。

图2 新直流系统原理图
4.1确认过渡直流屏交流输入电源开关、所有馈出开关均在分位,进行过渡屏接线。
4.1.1室外直流电源箱接线:断开控制室既有直流屏室外电机回路1路馈出开关、断开室外直流电源箱内1ZK开关,并拆除其上端引线包好绝缘,将过渡直流屏QF21馈出开关接入。
4.1.2室内直流电源箱接线:断开控制室既有直流屏室内电机回路1路馈出开关、断开室内直流电源箱内1ZK开关并拆除其上端引线包好绝缘,将过渡直流屏QF25馈出开关接入。
4.1.3控制直流电源接线:经过渡直流屏QF34馈出开关,将正极接于2#主变保护屏内6D2端子右侧,负极接于2#主变保护屏6D6端子右侧。
4.1.4信号直流电源接线:经过渡直流屏QF30馈出开关,将正极接于2#主变保护屏内6D10端子右侧,负极接于2#主变保护屏6D14端子右侧。
4.1.5逆变电源接线:确认逆变电源交流输入正常,断开既有直流屏逆变馈出开关,拆除逆变电源装置直流输入引线并包好绝缘;经过渡直流屏QF36馈出开关,将正极接于通讯处理屏逆变电源直流输入端子“+”,负极接于通讯处理屏逆变电源直流输入端子“-”。
4.1.6断开既有直流系统交流输入开关AK11、AK12及模块充电开关AK13、AK23,由既有蓄电池组供电。
4.1.7合上过渡屏交流输入电源启动过渡直流系统,依次合上QF21、QF25、QF34、QF30、QF36开关、室外直流电源箱内1ZK、室内直流电源箱内1ZK开关,由过渡屏加既有蓄电池组供电。
4.1.8测量直流母线电压正常后,断开既有直流屏所有开关,断开BK11、BK21开关,拔下RD1、RD2熔断器,撤除2#主变保护屏6D1、6D2、6D5、6D6端子排左侧的控制线拆掉,6D9、6D10、6D13、6D14端子排左侧的信号线拆掉,断开室内外电源箱内2ZK开关,断开事故照明KK05开关(考虑倒接工作在白天进行事故照明回路不进行跨接过渡)。撤除既有直流屏两路交流电源引线。
4.2新直流屏安装调试。
4.3确认新直流屏交流输入电源开关、所有馈出开关均在分位,进行新屏接线。
4.3.1室外直流电源箱接线:确认室外直流电源箱内2ZK开关已断开,并拆除其上端引线包好绝缘,将新直流屏QF22馈出开关接入。
4.3.2室内直流电源箱接线:确认室内直流电源箱内2ZK开关已断开,并拆除其上端引线包好绝缘,将过渡直流屏QF26馈出开关接入。
4.3.3控制直流电源接线:经过渡直流屏QF32馈出开关,将正极接于2#主变保护屏内6D2端子右侧,负极接于2#主变保护屏6D6端子右侧。
4.3.4信号直流电源接线:经过渡直流屏QF29馈出开关,将正极接于2#主变保护屏内6D10端子右侧,负极接于2#主变保护屏6D14端子右侧。
4.3.5逆变电源接线:确认逆变电源交流输入正常,断开过渡直流屏QF36馈出开关,拆除逆变电源装置过渡屏引线;经新直流屏QF36馈出开关,将正极接于通讯处理屏逆变电源直流输入端子“+”,负极接于通讯处理屏逆变电源直流输入端子“-”。
4.3.6断开过渡直流系统交流输入开关,由过渡屏蓄电池组供电。
4.3.7合上新直流屏交流输入电源启动新直流系统,依次合上QF22、QF26、QF32、QF29、QF36开关、室外直流电源箱内2ZK开关、室内直流电源箱内2ZK开关,由新直流屏加过渡屏蓄电池组供电。
4.3.8观察新直流系统运行正常后,将过渡直流系统的馈出再逐一接进新直流系统。
4.3.9在新直流屏系统接入交流屏操作电源、事故照明。
4.4撤除过渡电缆及屏柜。
5直流屏更换注意事项
5.1应将过渡直流系统、新直流系统设备按相关的检验规程进行试验,确保其充电装置、绝缘监测装置、蓄电池巡检装置、蓄电池组等设备都检验合格。
5.2更换前,应对既有直流系统、过渡直流系统的电池进行仔细检查,测量其输出电压是否满足要求,确保蓄电池组供电的可靠性。
5.3所使用的电缆截面、绝缘等符合要求,电缆敷设符合规定,接线要接触良好、牢固。
5.4由于过渡直流屏不上传监控系统,在施工过程中安排专人严密监视过渡直流系统运行情况,出现直流接地告警时马上停止倒接,查明原因及时处理,防止在一个系统内发生两点以上接地故障。
5.5交流盘直流控制电源需短时断电,断电后短时影响交流盘的信号显示和遥控操作,而不会影响交流系统主体运行和互投功能。
6 结束语
根据计划和安排,我们组织对临城牵引变电所直流屏进行了更换。通过两次倒接采取由既有直流装置的蓄电池组加一套过渡直流系统→过渡屏直流装置的蓄电池组加一套新直流系统→新直流屏,顺利实现了临城牵引变电所直流屏、蓄电池组等直流设备的整体更换。整个施工过程均未发生直流短路、接地等异常事件,经过直流系统改造后新直流系统运行安全、稳定,提高了供电可靠性,达到了预期的效果。
参考文献:
[1] 姜亚楠等.不停电更换110kV牵引变电所的直流屏[J].江苏电机工程,2002,(06)
作者简介:
林汪洋,北京铁路局石家庄供电段,助理工程师,研究方向为牵引牵引变电所检修试验及运行管理。
李彦吉,北京铁路局石家庄供电段,高级工程师,研究方向为牵引牵引变电所、配电室、给水所检修试验及运行管理。
(此文章为原创,转载须白条通过)
编辑:中国电源产业网
来源:《电源工业》
标签:
上一篇:累托石制备片状多孔硅碳负极材料
下一篇:绿色技术创新要真正让市场来主导
相关信息
MORE >>-
伊顿 SwitchGard 局放监测成功预警,护航海上电力动力平台稳健运行
近期,安装于某海上平台分段隔离柜的伊顿 SwitchGard 局放监测装置,成功捕捉到柜内异常放电信号,并提供了准确的 PRPD 局放检测图谱分析结果,为故障定位和后续检修赢得了宝贵的时间窗口,避免了非计划停机可能带来的经济损失与安全风险。
-
迈向长距离运输脱碳之路
LEM作为电量测量领域的专注者,其直流计费表DCBM系列产品旨在简化电表集成到充电桩的过程,为直流快速充电和直流目标充电系统提供解决方案。LEM电动汽车充电和计量全球产品经理Florent Balboni详细介绍了电动卡车充电的挑战以及对准确电量计量的需求。
-
达人观点 | 分布式-集中式控制引领运动控制技术的未来
image.png
作为台达工业自动化技术体系的重要开拓者之一,蔡清雄博士以三十年深耕铸就了台达在运动控制领域的领先地位。凭借对未来工业发展的深刻洞察,蔡清雄博士提出了“分布式-集中式控制将是运动控制技术未来革新的方向”。 -
IO-Link如何将“智能”融入智能工厂
Analog Devices, Inc. (NASDAQ: ADI)是全球领先的半导体公司,致力于在现实世界与数字世界之间架起桥梁,以实现智能边缘领域的突破性创新。
-
巨磁阻多圈位置传感器的磁体设计
Analog Devices, Inc. (NASDAQ: ADI)是全球领先的半导体公司,致力于在现实世界与数字世界之间架起桥梁,以实现智能边缘领域的突破性创新。
-
提升视觉体验:MIPI DSI-2赋能新一代AR/VR
通过MIPI技术和Rambus经过优化的MIPI DSI-2控制器内核的功能,产品设计人员可以更加从容地应对AR/VR设备在高性能数据传输、低延迟和高能效方面的挑战,最终提供更好的用户体验。




中国电源产业网网友交流群:2223934、7921477、9640496、11647415